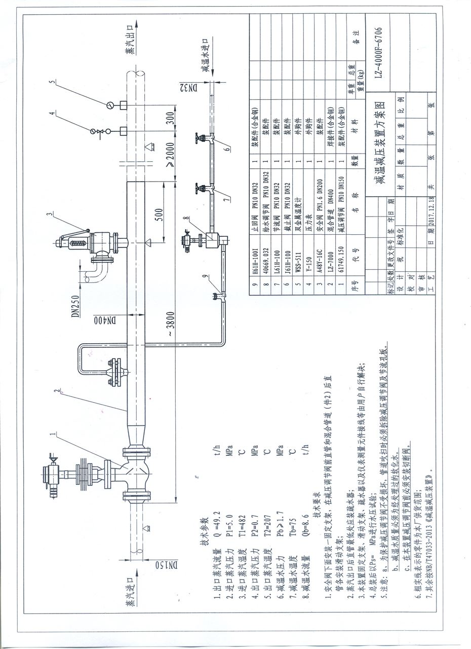
之前介绍SY42AX煤矿水管路减压阀应用案例,现在介绍新型结构减温减压装置安装维护本实用新型涉及一种减温减压装置,包括减温减压阀,减温减压阀前后分别设有蒸汽入口处和连接蒸汽出口处的蒸汽管道,减温减压阀底部连有包括给水调节阀的给水系统,蒸汽管道上设有安全保护系统。实用新型有益的效果是:本实用新型由减温减压系统、给水系统、安全保护系统和蒸汽管道组成,并由热控装置进行自动调节。主要配套阀门有减温减压阀、给水调节阀及安全阀,其中减温减压阀、给水调节阀均配有执行机构,具有用户使用、安装方便、调节精度高特点。采用减温减压阀结构,使整套装置的长度大大缩短,减少了占地面积,也降低了工程投资。针对现有减温减压装置所用双座减压阀存在的问题,设计了一种新型结构的双座结构减压阀,提高了减温减压装置的性能。 该装置由减温减压系统、给水系统、安全保护装置和蒸汽管道组成。并由热控装置进行自动调节。主要配套阀门有减温减压阀(或减压阀)、给水调节阀及安全阀,其中减温减压阀和给水调节阀均配有电动(或气动)执行机构,具有用户使用安装方便、调节精度高的特点。采用减温减压阀结构,使整套装置的长度大大缩短,减少了占地面积,也降低了工程投资。 
新型结构减温减压装置安装维护 1、减温减压系统 必一运动体育主营阀门有:蒸汽减压阀,减压阀(气体减压阀,可调式减压阀,蒸汽的减压过程是由减温减压阀(或减压阀)、压力调节阀和节流孔板来实现的,其减压级数由新蒸汽压力和出口蒸汽压力之差值来决定。减温减压阀的压力调节是通过压力变送器和PID调节器,再由电动执行机构操纵带动与减温减压阀瓣相连的阀杆,使阀瓣在套筒内上下运动,以改变通道面积的大小来达到节流减压的目的。 减温减压阀采用Z型单座套筒结构减压,增大了流量可调比,减少了阀门泄漏量;阀内设有节流孔罩(网罩),增大了减压幅度,同时避免减温水直接喷射在阀门上,保护了阀体,延长了阀门的使用寿命。 若是三次或三次以上的减压,除了减温减压阀外,还需要阀后节流孔板来实现。节流孔板上有许多小孔,当工蒸汽流经小孔时,由于通道面积缩小,使流过的蒸汽压力降低,同时也能起到消音作用。 蒸汽的减温过程是将冷却水由喷咀喷入阀腔内使水和蒸汽在阀内直接混合来实现的。  2、给水系统 是用来调节冷却水压力和喷水量大小的,从而达到控制温度的目的。其中主要靠给水调节阀来调节,该阀无给水回路系统,方便了用户布局。给水调节阀设有不同Kv值,根据用户所供的冷却水压力Pb,选择调节阀承受的适当压差DP。当用户所供的冷却水压力大于0.6P1MPa+DP(DP为给水调节阀的压差)应另装节流装置,节流装置内节流圈的数量和节流孔的大小根据给水的流量设计。 给水调节阀DN20、32均为单座或精小型。阀瓣和阀杆为一体式,阀杆直接与直行程执行机构相连,当蒸汽管道内蒸汽温度有改变时,便引起热电阻的电阻值改变经温度变送器和调节器传给电动执行机构,然后操纵阀杆,使阀瓣在阀座内运动,以改变流通面积来控制冷却水流量,使管道内蒸汽温度保持在规定的范围内,在通向减温减压阀喷嘴的管道上装有止回阀,防止因给水系统失压而使蒸汽倒流。 若没有带热控柜,根据现场二次蒸汽温度计,可以直接手动操作调节。 给水调节阀前装有截止阀和节流阀,用来适当调节流量、压力。 3、安全保护装置 新蒸汽通过减温减压阀和节流孔板进行减压后,在此管道上装有安全保护装置(形式有冲量和弹簧二种),该装置的作用是当蒸汽管道内的压力超出允许值时,将蒸汽排向大气,使管道内蒸汽压力保持在允许值内,从而保证减温减压装置及用汽设备的安全。
冲量式安全装置由冲量安全阀、主安全阀组成。 冲量式安全装置动作原理如下: 当减温减压后的蒸汽压力超出允许值时,冲量式安全阀的阀瓣便开启,蒸汽则通过管子进入主安全阀的活塞上部空间,因为主安全间活塞面积大于其阀瓣的面积,因此蒸汽作用在活塞上的力大于管道内蒸汽作用于阀瓣的力,这样就使主安全阀的阀瓣打开,将蒸汽排至大气中去。 当管道内蒸汽压力降低到允许额定值或稍低时,冲量安全阀的阀瓣在重锤作用下降落,关闭了冲量式安全阀通向主安全阀的通道,在主安全阀上部空间的蒸汽由排汽管道排出,主安全阀活塞上部由于压力降低,并在弹簧和蒸汽作用下,主安全阀关闭,进入正常运行。 4、减温减压装置的附属设备 减温减温装置管道进出口均需装电动闸阀(或电动截止阀)以供开启和关闭之用,在装置管道低处应装有吹洗、取样、疏水排污用的阀门。 减温减压装置,配有自动控制系统,按用户需要,由我公司配套提供多种类型的蒸汽压力、温度、流量等控制装置。

新型结构减温减压装置安装维护 1.在装置运行时期,应经常观察蒸汽流量、压力和温度及减温水箱液位,所有仪表读数均应按时记入值班手册,以备查考。 2.配水泵的应该定期保养水泵,观察水泵是否正常工作。 3.同时,必须检查阀门附件的机械运动灵活,需加润滑油处要经常加油,维护设备的清洁。 4.定期检查主安全阀开启和关闭的灵活性,可小心谨慎地迅速抬起冲量式安全阀的杠杆来检查之。装置应定期检查和校验,以消除检修和运行时发现的故障。 5.在检修时,应拆开所有的阀门,更换和修复磨损的另件,如减温装置喷嘴、减压阀的阀瓣、阀杆等,同时检查和校验自动控制仪表。阀门附件检修后,应进行水压试验。 6.自动控制装置的校验和维护,按照提供蒸汽压力控制装置的技术资料和说明书进行。与本产品相关论文禁油脱脂氧气减压阀操作维护 |